Widokowa działka Niedźwiedź k/Mszany Dolnej 800m2 z PNB

limanowski, Niedźwiedź

210 000 PLN

Numer oferty13
Typ transakcjiSprzedaż
Cena210 000 PLN
Powierzchnia800 m2
Cena za m2262,50 PLN / m2
Typ działkiinna
Przeznaczenierekreacyjna
Długość36
Szerokość33
Typ ogrodzeniabrak
Typ drogiasfaltowa
Forma własnościwłasność
Prądjest
Gazbrak
Kanalizacjabrak
SąsiedztwoBrak
Wygląd działkiteren pochyły, pusta
Typ ogrodzeniabrak
Typ drogiasfaltowa
Widokowa działka Niedźwiedź k/Mszany Dolnej 800m2 z PNB (limanowski, Niedźwiedź)

Na sprzedaż atrakcyjna działka z pozwoleniem na budowę budynku jednorodzinnego + budynek gospodarczy o powierzchni 800 m2, położona w miejscowości Niedźwiedź (gmina Niedźwiedź).

Przeznaczenie: działka rolna z możliwością zabudowy zagrodowej - na działkę jest wydane pozwolenie na budowę,
Wymiary: kształt nieregularny - trapez - 36m x 33m x 17m x 37 m,
Media: sieć energetyczna w sąsiedztwie, studnia oraz osadnik szambo do wykonania we własnym zakresie,
Dostęp do drogi: działka ma bezpośredni dostęp do drogi gminnej asfaltowej,
Nr działki: 1173, 1172, identyfikator działki: 120710_2.0002.1173 , 120710_2.0002.1173

Opis lokalizacji:
Nieruchomość zlokalizowana w spokojnej okolicy widokowej okolicy. W bezpośrednim sąsiedztwie łąki oraz szlaki pieszo-rowerowe (m.in. na Turbacz). Nachylona w stronę zachodnią, dobrze nasłoneczniona. Las w odległości około 350m. Granice działki są ustalone i wyznaczone w terenie.
Nieruchomość zlokalizowana około:
50 km od Krakowa,
25 km od Limanowej,
70 km od Zakopanego,
50 km od Nowego Sącza,
20 km od wyciągu narciarskiego w Kasinie Wielkiej.
350 m od lasu.

Link do lokalizacji na google mapach: https://goo.gl/maps/ch6RuK4tKm8rZbSq9
Współrzędne do na google mapach: 49.613483, 20.085275

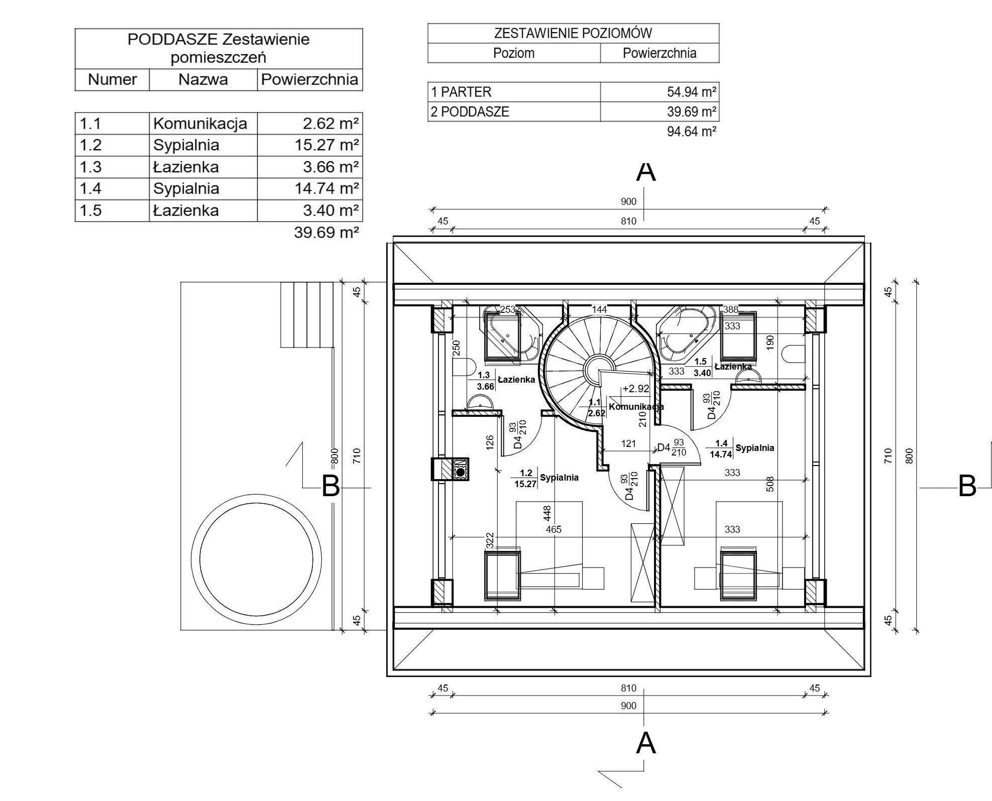
Co można wybudować na działce:
Dla działki wydane jest pozwolenie na budowę budynku mieszkalnego i gospodarczego z wiatą.
Budynek mieszkalny:
Parter:
54.94
Poddasze: 39.69
Całkowita powierzchnia: 94.64 m²
Budynek gospodarczy z wiatą:
Powierzchnia około 52m2.

W cenę wliczony jest podatek vat 23%,



Treść niniejszego ogłoszenia nie stanowi oferty handlowej w rozumieniu Kodeksu Cywilnego.
limanowski, Niedźwiedź

Kontakt